Moderne Bürofläche / Atelier ca. 76 m² im Wrangelkiez!







Objektart
Büro/Praxen
Objekttyp
Bürofläche
Vermarktungsart
Miete
PLZ
10997
Ort
Berlin Kreuzberg
ImmoNr
LI-0073_2
Anzahl Zimmer
1
Baujahr
1890
Kaution
5.238,00 €
Beschreibung
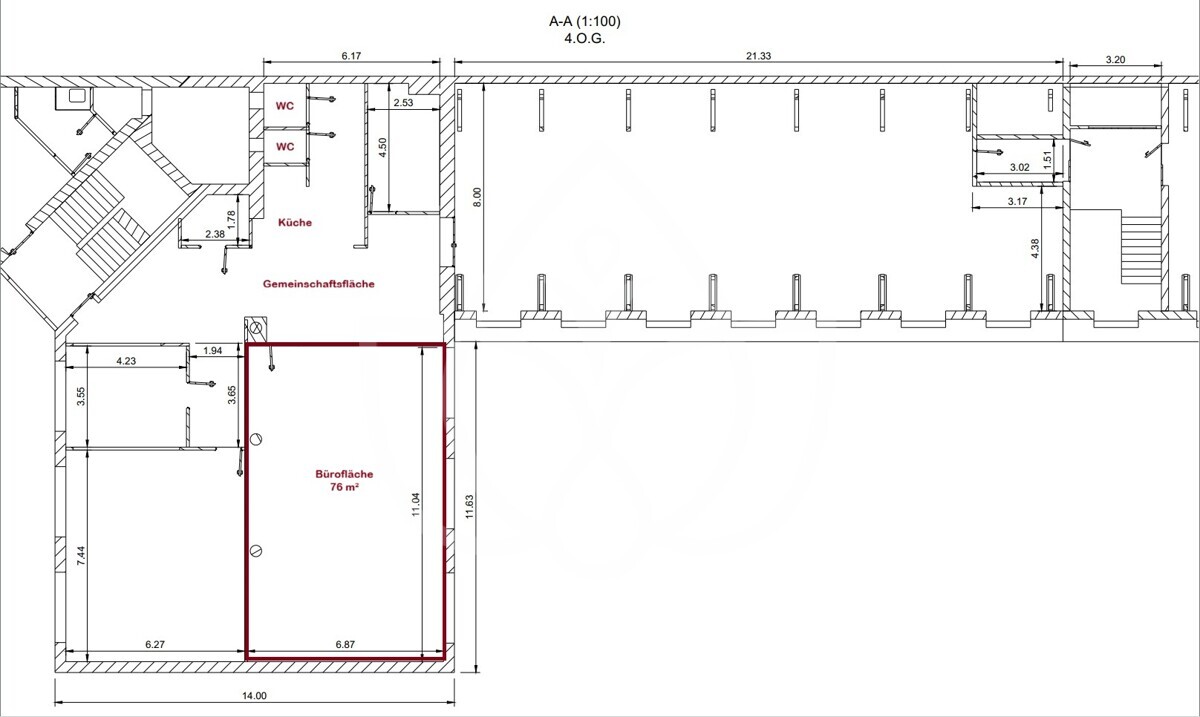
Im 4. Obergeschoss eines zweiten Hinterhofgebäudes auf einem etablierten Gewerbe-Campus im lebendigen Wrangelkiez steht eine modernisierte Büro- bzw. Ateliereinheit zur Vermietung. Die Fläche ist Teil eines Ensembles aus insgesamt drei separaten Büroeinheiten und bietet einen anteiligen Zugang zu den gemeinschaftlichen Flächen mit Küche, WC und Eingangsbereich.Diese kompakte Einheit mit ca. 76 m² Nutzfläche überzeugt durch großzügige Fensterflächen, die ein helles und inspirierendes Arbeitsumfeld schaffen. Der Zugang erfolgt über den Treppenaufgang, die Einheit ist hell, funktional und modern ausgestattet.
Die Fläche eignet sich insbesondere für Freiberufler, Designer, kleine Agenturen oder Ateliernutzer, die eine kompakte, helle und flexibel gestaltbare Arbeitsumgebung suchen. Sie bietet ein inspirierendes Umfeld für kreative Tätigkeiten, Projektarbeit oder kleine Teams.
Lage
Die Büroeinheit befindet sich im 4. OG (Hinterhoflage) eines etablierten Gewerbe-Campus direkt am Görlitzer Park im beliebten Wrangelkiez in Berlin-Kreuzberg. Die Umgebung bietet eine urbane, kreative Atmosphäre mit zahlreichen Cafés, Restaurants und Bars in unmittelbarer Nähe – ideal für Mittagspausen, Geschäftstermine oder den entspannten Austausch nach Feierabend.Mit der U-Bahn-Station Schlesisches Tor und Görlitzer Bahnhof sowie mehreren Buslinien in unmittelbarer Nähe ist die Anbindung an den öffentlichen Nahverkehr ideal; Parkmöglichkeiten stehen im öffentlichen Straßenraum zur Verfügung.
Ausstattung
- 4. OG im Hinterhof- Gesamtfläche ca. 398 m²
- Treppenaufgang
- Lastenaufzug vorhanden
- 2025 saniert und modernisiert
- insgesamt ca. 76 m² Bürofläche
- integrierte Loft-Fenster im Innenbereich
Gemeinschaftsfläche bestehend aus
- Eingangsbereich
- Küchenzeile
- 2 WC
- zusätzlicher Abstellraum
Sonstige Angaben
Bitte beachten Sie, dass Anfragen ohne Angabe von Telefonnummer und vollständiger Anschrift nicht bearbeitet werden können.Besichtigungen sind in der Regel kurzfristig und nach vorheriger telefonischer Terminvereinbarung möglich.